Sie sind mit dem Bau oder dem Umbau von BK-Anlagen beauftragt und benötigen eine fachmännische Planung?
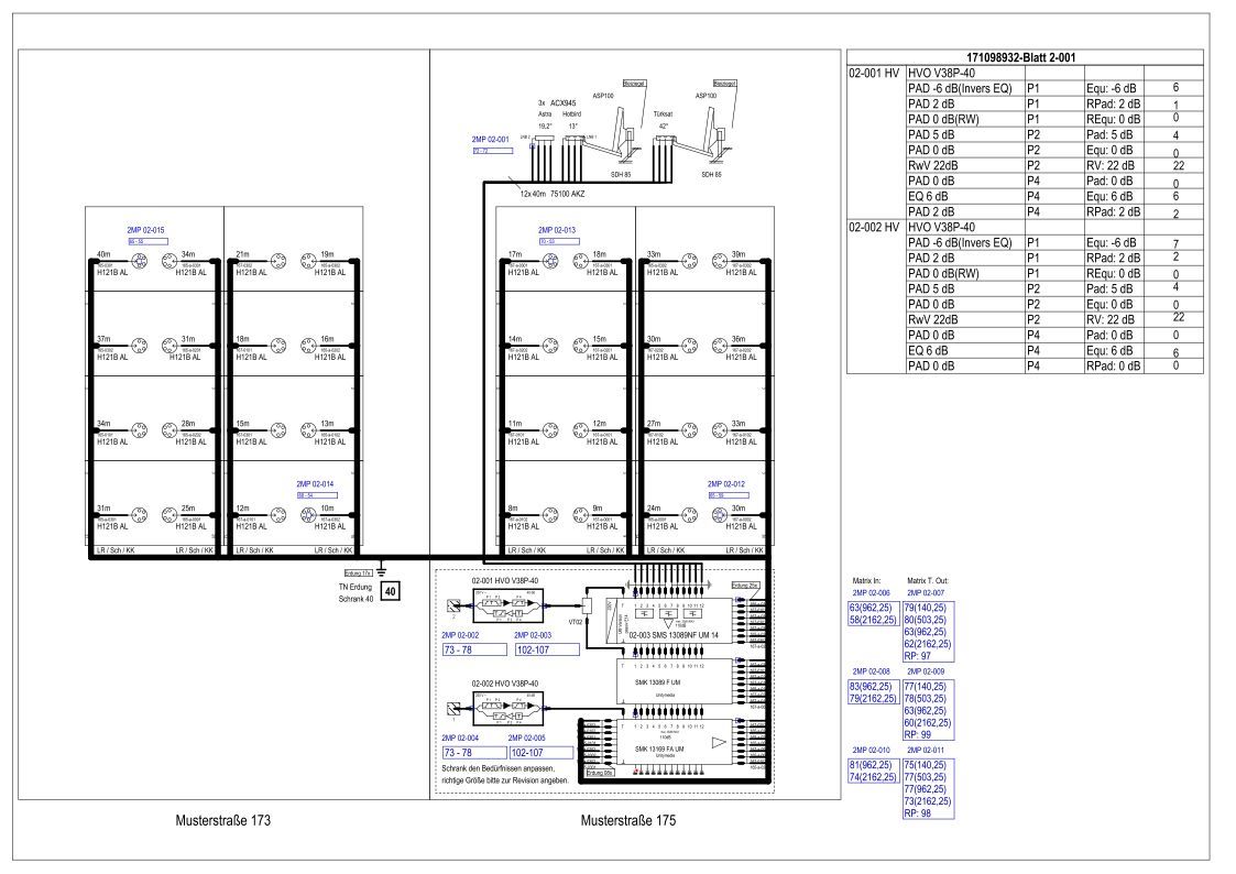
Wir sind vertraut mit den unterschiedlichen Planungsstandards aller großen deutschen Netzbetreiber. Für die Erstellung Ihrer AND-Planung benötigen wir daher nur noch die Skizzierung der baulichen Gegebenheiten vor Ort. Die technischen Anforderungen entsprechend des jeweiligen Planungsstandards werden von uns automatisch umgesetzt.
Wir begleiten Sie bis zur endgültigen Abnahme der AND-Revision durch den Auftraggeber.
Unser Service:

- Planung
Anhand Ihrer Skizze/Aufnahme erstellen wir die AND-Planung. Wir haben entsprechende Vorlagen erstellt, so dass Sie uns ohne viel Aufwand alle für uns erforderlichen Informationen zum Objekt zukommen lassen können. Die fertige Planung erhalten Sie als PDF-Ausdruck zuzüglich einer Materialliste und bei Bedarf einer Messpunktliste. - Revision
Auf der Planung können Sie die Abweichungen notieren oder kurz skizzieren und uns wieder zukommen lassen. Sie erhalten anschließend alle erforderlichen Unterlagen, die Sie zur Abrechnung mit Ihrem Auftraggeber benötigen. Wenn aufgrund der Rotstiftkorrektur Probleme auftreten, setzen wir uns mit Ihnen in Verbindung. In der finalen Version liefern wir Ihnen eine AND-Datei mit einem fehlerfreien Netzcheck. - Umplanung
Im Zuge des Baufortschrittes ergeben sich Änderungen, die in der Planung berücksichtigt werden müssen? Informieren Sie uns und wir lassen diese Änderungen in die Planung einfließen. Sie erhalten ein Update der Planung. - Umbauvorschlag
Nach dem Einpflegen Ihrer Rotstiftzeichnung in AND berechnen wir das Netz unter Vollauslastung. Da die Berechnung teilweise auf virtuellen Bauteilen (z.B. Plandosen etc.) und Frequenzen erfolgt, stehen Ihnen auf der Baustelle hierzu kaum Prüfmöglichkeiten zur Verfügung. Sollte sich dann herausstellen, dass das Ergebnis nicht konform ist mit den Anforderungen des Netzbetreibers, unterbreiten wir Ihnen einen entsprechenden Umbauvorschlag, so dass bei der Endabnahme diesbezüglich keine Probleme mit Ihrem Auftraggeber zu erwarten sind. - Telefonsupport
Trotz detaillierter vorheriger Objektklärung Ihrerseits kommt es immer wieder zu Änderungen während der Bauphase. Hierzu können Sie uns direkt von der Baustelle aus anrufen und wir erstellen „online“ eine Lösung, so dass die bauliche Umsetzung vor Ort nicht ins Stocken gerät.
„Erstens kommt es anders und zweitens als man denkt“… - Online-Planung
Sie müssen spontan morgen eine BK-Anlage installieren. Sie kennen das Objekt nicht und haben noch keine Planungsunterlagen? Kein Problem. Fahren Sie das Objekt an und machen sich mit den Örtlichkeiten vertraut. Informieren Sie uns telefonisch oder lassen Sie uns eine Skizze von den Gegebenheiten vor Ort zukommen. Während Sie mit den Installationsarbeiten beginnen, erstellen wir die technische Planung. Zum Einmessen der Anlage stellen wir Ihnen die nötigen Informationen zur Verfügung.



